Меня зовут Хайдар Тухтаев. Я не "офисный менеджер", а строитель, который лично находится на объекте. Я знаю, как ведет себя грунт в Югре и как утеплить дом, чтобы в -45°C вы ходили в футболке.
Мы не просто кладем кирпичи — мы создаем место, где будет расти ваша семья.
Строим как для себя
Получите проект или отмостку в подарок
Наши услуги
Строительство домов
Полный цикл: от фундамента до кровли. Гарантия 5 лет по договору.
Подробнее
Благоустройство "Под ключ"
Заборы, септики, бани, брусчатка. Вы получаете готовый двор, а не стройплощадку с мусором.
Подробнее
Участникам СВО и семьям
Особые условия для защитников Родины. Индивидуальные подарки до 300 000₽, приоритетное обслуживание.
Этот проект — идеальное решение для тех, кто ценит умный подход и не хочет переплачивать за лишние квадратные метры. СП-68 доказывает, что современный и комфортный дом может быть компактным и доступным.
Что делает его таким популярным:
Максимальная экономия: Это один из самых выгодных проектов как в строительстве, так и в дальнейшем отоплении. Идеальный вариант для первого собственного дома, по цене сопоставимый с квартирой.
Продуманная планировка: На 68 м² мы разместили просторную кухню-гостиную и две изолированные комнаты, которые можно использовать как спальню и кабинет или детскую. Высокие потолки в 3 метра визуально расширяют пространство, избавляя от ощущения тесноты.
Современный дизайн: Стильный фасад с деревянными акцентами выглядит дорого и актуально, выгодно выделяя дом на фоне стандартных построек.
СП-68 — это ваш шанс построить собственный дом без огромных затрат. Разумный выбор для молодой семьи, родителей или тех, кто решил переехать за город, ценя уют и минимализм.
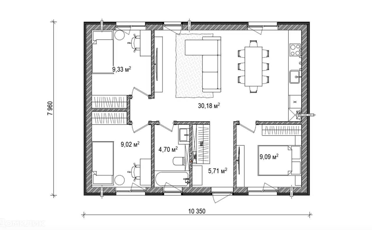
Проект СП-88 — это "золотая середина" для тех, кто ищет просторный, но экономичный дом. В нем нет ничего лишнего, но есть всё для комфортной жизни современной семьи.
Что делает его хитом продаж:
Максимум удобства: Главное преимущество проекта — два полноценных санузла! Это уровень комфорта, который редко встречается в домах до 100 м². Забудьте об утренних очередях — один санузел для хозяев, второй для детей и гостей.
Три комнаты: Планировка включает три изолированные комнаты, которые можно использовать как две спальни и кабинет, или как спальню и две детские.
Оптимальная площадь: 88 м² — это идеальный баланс между простором для жизни и разумными затратами на строительство и отопление, что особенно важно в нашем климате.
Стильный фасад: Сочетание белой штукатурки и дерева — это современная классика, которая выглядит дорого и всегда актуальна.
СП-88 — это выбор прагматичных людей, которые не хотят выбирать между ценой и комфортом. Идеально подходит для семьи с одним или двумя детьми, предоставляя каждому личное пространство.
Для тех, кто ценит основательность и не гонится за мимолетной модой. СП-90 — это классический одноэтажный дом, который выглядит как настоящая семейная усадьба. Благородный кирпичный фасад и надежная четырехскатная крыша создают ощущение защищенности и долговечности.
Что делает его лучшим выбором для практичных людей:
Максимум комфорта: Главное преимущество проекта — два полноценных санузла! Это уровень удобства, который обычно встречается в домах гораздо большей площади. Идеально для семьи, чтобы избежать утренних очередей.
Продуманная планировка: На 90 м² грамотно размещены три изолированные комнаты. Это позволяет организовать мастер-спальню, детскую и рабочий кабинет, обеспечивая личное пространство для каждого члена семьи.
Капитальный фасад: Облицовочный кирпич — это не только красиво, но и максимально долговечно. Такой дом не потребует ремонта фасада десятилетиями и будет только расти в цене.
Удобство одного этажа: Отсутствие лестниц делает дом безопасным для детей и пожилых родителей, а также удобным для повседневной жизни.
Проект СП-90 — это выбор для тех, кто строит "на века". Это ваша личная крепость, которая подарит уют, комфорт и уверенность в завтрашнем дне.
Этот проект — настоящая находка для тех, кто ценит современный дизайн и обилие естественного света. СП-93 — это не просто дом, это пространство, где ваш интерьер и природа за окном становятся единым целым. Архитектурная доминанта этого проекта — огромная панорамная стена из стекла в гостиной. В сочетании с высокими потолками (3,1 метра) это создает невероятное ощущение простора и воздуха.
Что делает этот проект уникальным:
Панорамное остекление: Гостиная буквально залита светом с утра до вечера. Зимой вы будете наслаждаться заснеженным пейзажем, а летом — зеленью вашего сада, не выходя из дома.
Высокие потолки 3,1м: Визуально увеличивают пространство и подчеркивают объем гостиной со "вторым светом".
Функциональная планировка: На 93 м² грамотно расположены три изолированные комнаты и просторная кухня-гостиная, что делает проект идеальным для семьи.
Стильный экстерьер: Комбинация дерева, штукатурки и больших окон — это современный и дорогой внешний вид, который никогда не устареет.
СП-93 — это выбор для тех, кто хочет не просто "коробку", а современный и светлый дом с характером, который будет вызывать восхищение и дарить ощущение свободы каждый день.
Современный одноэтажный дом, созданный для комфортной жизни семьи из 3-4 человек. Этот проект — разумная альтернатива городской квартире, где у каждого будет свое пространство.
Что внутри:
3 изолированные комнаты: мастер-спальня и две детские/гостевые.
1 просторный санузел.
Высокие потолки 3 метра, которые создают ощущение простора и света.
Отличный выбор для тех, кто ценит функциональность, современный дизайн и не хочет переплачивать за лишние метры.
Представьте себе гостиную, где потолки уходят ввысь, а комната залита естественным светом с утра до самого вечера. Именно такое ощущение дарит проект СП-107 — современный и невероятно уютный дом, созданный для ценителей стиля и пространства.
Что делает его особенным:
Главная фишка — "второй свет" в гостиной. Благодаря высокому потолку и дополнительному окну под самой крышей, главное помещение дома ощущается невероятно просторным и воздушным. Это архитектурное решение превращает гостиную в центр притяжения для всей семьи.
Стиль "Барнхаус". Сочетание белой штукатурки, акцентов из натурального дерева и темной кровли — это современный и очень популярный дизайн. Такой дом выглядит дорого, стильно и при этом очень уютно.
Удобство одного этажа. Вся жизнь проходит на одном уровне — без неудобных лестниц, что делает дом безопасным для детей и комфортным для всех членов семьи.
Продуманная планировка. Проект включает всё необходимое для комфортной жизни: несколько спален, санузлы и просторную общую зону.
СП-107 — это выбор для тех, кто ищет не просто дом, а архитектуру, которая дарит эмоции. Идеально подходит для современной семьи, ценящей стиль, комфорт и ощущение свободы.
Представьте себе гостиную, где потолки уходят ввысь, а комната залита естественным светом с утра до самого вечера. Именно такое ощущение дарит проект СП-107 — современный и невероятно уютный дом, созданный для ценителей стиля и пространства.
Что делает его особенным:
Главная фишка — "второй свет" в гостиной. Благодаря высокому потолку и дополнительному окну под самой крышей, главное помещение дома ощущается невероятно просторным и воздушным. Это архитектурное решение превращает гостиную в центр притяжения для всей семьи.
Стиль "Барнхаус". Сочетание белой штукатурки, акцентов из натурального дерева и темной кровли — это современный и очень популярный дизайн. Такой дом выглядит дорого, стильно и при этом очень уютно.
Удобство одного этажа. Вся жизнь проходит на одном уровне — без неудобных лестниц, что делает дом безопасным для детей и комфортным для всех членов семьи.
Продуманная планировка. Проект включает всё необходимое для комфортной жизни: несколько спален, санузлы и просторную общую зону.
СП-107 — это выбор для тех, кто ищет не просто дом, а архитектуру, которая дарит эмоции. Идеально подходит для современной семьи, ценящей стиль, комфорт и ощущение свободы.
Классический двухэтажный коттедж, созданный для большой и дружной семьи, ценящей комфорт и основательность. Проект СП-201 площадью 201 м² — это воплощение настоящего родового гнезда, где хватит места всем.
Благородный кирпичный фасад придает дому респектабельный и вневременной вид, подчеркивая статус его владельцев.
Ключевые преимущества этого проекта:
5 просторных комнат: Позволяют организовать отдельные спальни для детей, рабочий кабинет и комнату для гостей. Никакой тесноты.
Встроенный гараж: Ваш автомобиль всегда в тепле и под рукой. Попасть из машины в дом можно, не выходя на улицу, что бесценно в нашем северном климате.
Два полноценных санузла: Исключают утренние очереди и добавляют комфорта для большой семьи.
Классическая планировка: Первый этаж — для семейных вечеров и приема гостей, второй — приватная тихая зона для отдыха.
Проект СП-201 — идеальное решение для тех, кто строит серьезный, капитальный дом на долгие годы, в котором вырастет не одно поколение вашей семьи.
Для тех, кто ценит простор и не готов на компромиссы. СП-202 — это роскошный одноэтажный дом площадью 202 м², созданный для максимального комфорта.
Главная изюминка этого проекта — огромная кухня-гостиная с панорамным остеклением и высокими потолками (3м). Благодаря этому, дом буквально залит солнечным светом, а вид на ваш участок становится частью интерьера.
Что делает этот проект особенным:
Огромная площадь: 202 м² на одном этаже — забудьте о тесноте.
3 большие спальни и 2 санузла: комфорт для всей семьи и гостей, без утренних очередей.
Панорамные окна: создают невероятное ощущение свободы и единения с природой.
Мы строим рядом с вами
Реальные объекты, адреса и честные отзывы заказчиков.
Отзывы о строительстве домов
Сергей Хаманов
Строительство загородного дома
Очень доволен результатом! Дом построен качественно, все работы выполнены в срок. Рекомендую!
Светлана Смирнова
Строительство дома в черте города
Строительство прошло гладко, без задержек. Качество материалов и работы на высоком уровне. Буду рекомендовать знакомым.
Мария Иванова
Строительство дома по индивидуальному проекту
Индивидуальный подход к проекту и высокое качество исполнения. Очень довольна результатом.
Сергей Хаманов
Строительство загородного дома
Очень доволен результатом! Дом построен качественно, все работы выполнены в срок. Рекомендую!
Светлана Смирнова
Строительство дома в черте города
Строительство прошло гладко, без задержек. Качество материалов и работы на высоком уровне. Буду рекомендовать знакомым.
Мария Иванова
Строительство дома по индивидуальному проекту
Индивидуальный подход к проекту и высокое качество исполнения. Очень довольна результатом.